Drag
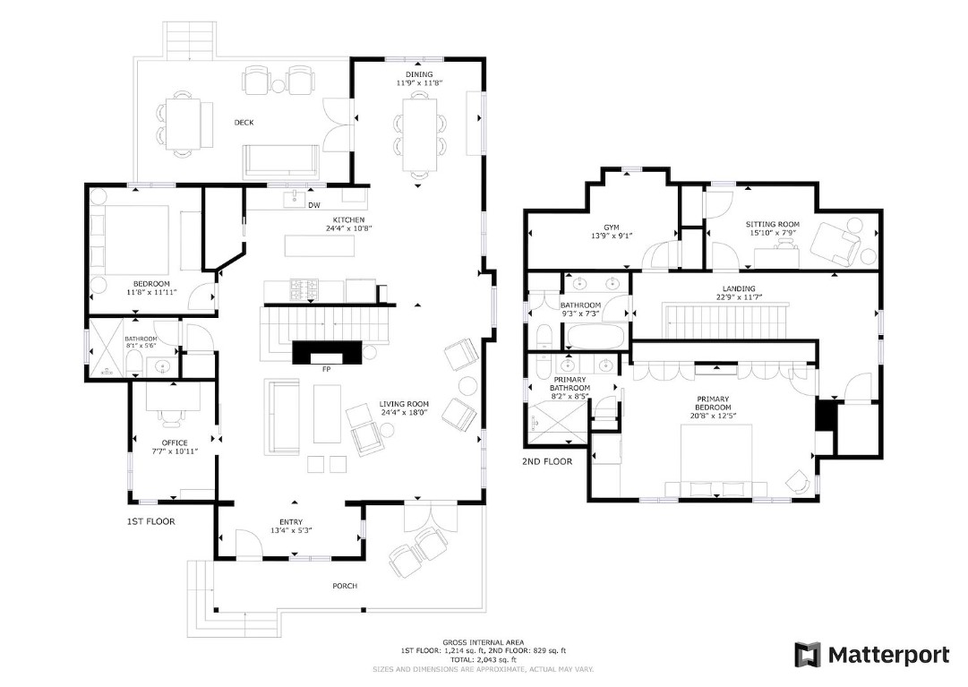
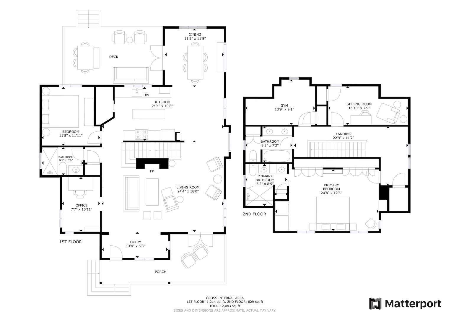
Schematic Floor Plans

B&W with Furniture Floor Plans

Real Design Studio, a thriving firm with specialty in Real Estate, Architecture and Graphic illustration facets.